Striking And Creative Modern Home With Personal Art Galleries
Who says that an art gallery cannot be collaborated with creative modern home. This following example would ensure you to put your art collection inside your house. The house is located in Amagasett, New York, USA. This house was designed by Bates Masi Architects. The architectural firm are quite well-known in the Sag Harbor. They have created this Qual Hill House for a client who wish to be able to accommodate his every art collection inside the house.
From the outer part of the house we can see that the house employs different cover for different level of building. The lower part of the house employs wooden furniture to cover the wall. Meanwhile, the upper part of this modern home design decides to employ unpainted brick wall. Besides, the house also collaborates with wooden materials to cover other facade of this house. The house goes classical by employing a pitched roof and large chimney.
Let’s take a look at the house’s interior. The house employs high ceiling. The living room has a laminated wood floor. It also has a grey couch and armchairs placed on top of a fur rug. The living room itself is also decorated with large painting collections on the wall. On the back of the seating area, there is a dining room with all white dining table as surrounded by wooden dining chairs. The dining set also has four hanging lamps to provide lighting.
Since the art collection is countless, the paintings are also employed inside the residents’ bedroom. This bedroom employs large fur carpet. On top of the carpet, there is a low bed frame which is accompanied by two end tables made out of wood.
Above the bed’s head board, we can find a painting of torn American flag. Meanwhile, across the bed, the residents are spoiled with flowery paintings. This modern home design ideas also employ transparent facade to connect the bedroom with the house’s backyards.

Wide Wooden Bed And White Quilt In The Qual Hill House Bedroom With Brown Bedside Tables

Stunning Dining Room And Living Room In Qual Hill House With Wooden Floor And Artistic Painting

Perfect Design Plan Of Qual Hill House Ground Level With Entry Terrace And Dining Room Beside Kitchen

Long Architecture Of The Qual Hill House With Wooden Wall And Brown Roof Near Long Blue Pool

Interesting View Of The Qual Hill House Facade With Grey Chimney And Wooden Wall Near It

Fascinating White Kitchen In Qual Hill House With Long Island And White Stools On Hardwood Floor

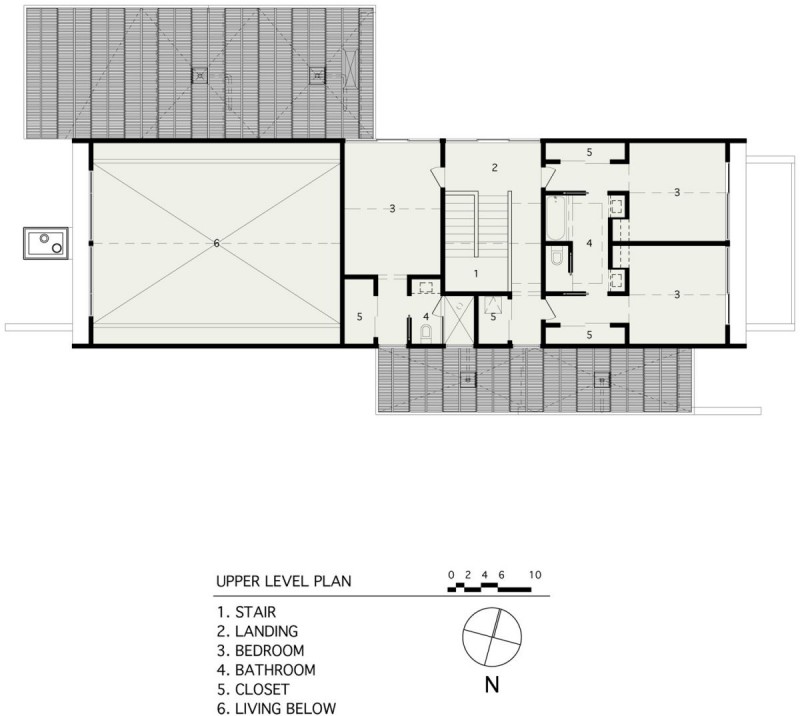
Brilliant Upper Level Design Plan For The Qual Hill House With Staircase And Bedroom Near The Bathroom

Attractive Bathroom In The Qual Hill House With White Tub And Glass Shower Space Under The White Ceiling

Appealing Architecture Of The Qual Hill House With Wooden Wall And Long Blue Pool Near Grass Yard
Image By : Bates Masi Architects


























